08 - 2-izbový apartmán v srdci Rajeckých Teplíc

Uložiť inzerát      Naše služby      Obhliadka

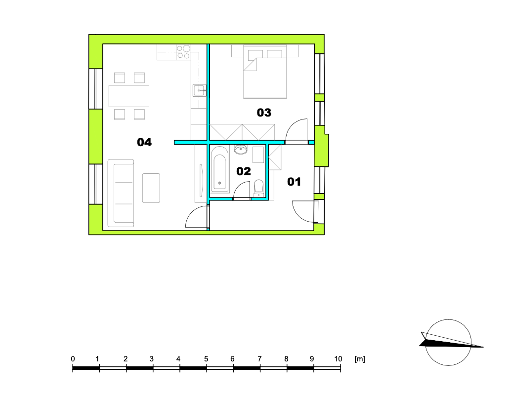
Detail ponuky

Číslo ponuky: ZA015940

Popis

Cena 173 523 €
Typ nehnuteľnosti Byty
Inzertná kategória Predaj
Stav nehnuteľnosti Kompletná rekonštrukcia
Plocha 53.11 m2

Ponúkame Vám na predaj 2-izbový apartmán priamo v centre mesta Rajecké Teplice, pár krokov od kúpeľov Aphrodite, s podlahovou plochou 53,11 m² a pivnicou 3,10 m² na 3. NP. Apartmán ponúka presvetlenú dennú zónu orientovanú na JZ, praktickú spálňu a komfort v pešom dosahu všetkého, čo v Tepliciach milujete. Ideálna voľba na pokojné bývanie aj investičné prenajímanie.

Cena: 173 523 € s DPH 
Možnosť dokúpenia parkovacieho miesta v cene 15 000 € s DPH.
Objekt prešiel kompletnou rekonštrukciou v r. 2025. Apartmány sa predávajú v štandarde.

Lokalita:

Rajecké Teplice sú ikonické kúpeľné mestečko v Rajeckej doline – kombinujú celoročné wellness (Aphrodite), pokojné centrum, zeleň a výbornú dostupnosť do/zo Žiliny. V pešej vzdialenosti nájdeš spa & wellness, reštaurácie, kaviarne, potraviny, park a služby. Okolie ponúka cyklotrasy, turistiku a lyžovačku v širšom okolí, takže lokalita funguje 12 mesiacov v roku.

Prečo je to skvelé miesto na bývanie a investíciu

  • Lokalita: Pešia dostupnosť.
  • Wellness & relax: Aphrodite a hotelové služby zvyšujú dopyt po krátkodobých pobytoch.
  • Príroda na dosah: Rajecká dolina, Súľovské skaly, Lietavský hrad, Čičmany – výlety pre rodiny aj športovcov.
  • Dostupnosť: Žilina autom - 20 min.
  • Celoročné využitie.

Investičné plusy

  • Stabilný domáci dopyt po kúpeľných a víkendových pobytoch.
  • Krátkodobý prenájom funguje aj mimo hlavnú sezónu vďaka kúpeľom.

Stav nehnuteľnosti - Kompletná rekonštrukcia. Cena: 173 523 €. Nájdete na stránke realityMGM.sk pod ID ZA015940. Call centrum tel: 0910 86 11 86.



Rajecké Teplice

Geografia

Ležia v južnom výbežku Žilinskej kotliny na svahu Skalky. Nízka pahorkatinná časť chotára je na terasových naplaveninách Rajčianky a Kuneradského potoka, severná časť na stráňach a na hrebeni Skaliek, ktoré tvoria druhohorné horniny. Výškový rozdiel medzi oboma časťami je podmienený tektonickou poruchou, takzvaným rajeckoteplickým zlomom, pozdĺž ktorého kotlina poklesla. V zlome sú pramene termálnych minerálnych vôd. Podnebie Teplickej kotliny je priaznivé, ročný priemer teploty je asi 7,5 °C, pričom najteplejší mesiac júl má priemernú teplotu 16,7 °C. Veľmi priaznivé sú najmä jarné a jesenné mesiace, keď najmenej prší a teplota cez deň dosahuje 15 - 18 °C. Ovzdušie je bez prachu, ovládané západnými a severozápadnými vetrami. V chotári sú hnedé lesné pôdy, lesy len v severnej časti. Vápencové Skalky sú chránený prírodný útvar. Pomerne výdatné zrážky a mierna teplota umožnili vznik bohatej vegetácií. Najrozšírenejší vegetačný kryt tvoria bučiny, jedle a borovice, najmä na skalných hrebeňoch a prudších svahoch s tenkou vrstvou vápencových a dolomitových zvetralín. Najpôvabnejšie sú Skalky s vápencovou flórou, ako je kavyl pôvabný (Skipa pulcherima), žeružník skalný (Hornungia petracea), trčník čmelovitý (Ophrys fuciflora), cesnak žltý (Allium flavum) a iné druhy panónskej kveteny. Rastie tu i poniklec, prvosienka lysá, vemenník dvojlistý, vtáčia prilbica biela, stokráska Michaeliho. Zo zveri tu žije divá mačka, líška, srna, zmija, jašterica a iné. Z vtákov výr, drozd skalný, sokol myšiar, myšiak, jastrab, pinka, krutihlav, ďateľ veľký, brhlík, sýkorky a ďalšie. Z motýľov okáče, jasoň parmský ap.

 

História

Nachádzajú sa tu výšinné a rovinné sídliská púchovskej kultúry z počiatku doby rímskej a sídlisko z doby poveľkomoravskej. Rajecké Teplice vznikli ako osada v chotári obce Konská. Prvé spoľahlivé svedectvo o ich existencii poskytuje listina uhorského kráľa Ľudovíta Veľkého z r. 1375. V listine sa v súvislosti so zámenou kráľovských majetkov v Novohradskej stolici za rajecké majetky šľachtica Dominika a jeho príbuzných spomína aj škultécia dediny Teplica: "scultetia seu rectoratus vulgo wayth villae Tapolcha". Možno teda predpokladať, že Rajecké Teplice vznikli niekedy v polovici 14. stor. Boli kolonizované pravdepodobne z neďalekej Žiliny, rovnako, ako ďalšie osady Rajeckej doliny. Celé územie v povodí Rajčianky patrilo hradu Lietava. V listinách sa uvádzajú Teplice ako "possessio Thoplycza" aj v r. 1496. Obec bola súčasťou Lietavského panstva, žilo v nej niekoľko rodín, zaoberajúcich sa roľníctvom, drevorubačstvom a chovom dobytka. Neskôr bol v obci mlyn a píla. Teplice teda mali v rukách vždy majitelia hradu Lietava. Pre obec boli najvýznamnejšími Thurzovci, ktorí už dobre poznali liečivé účinky prameňov v Rajeckých Tepliciach. Chodieval sem rád i palatín Juraj Thurzo. Asi v r. 1610 tu dal postaviť, resp, upraviť murovaný dom so 7 izbami. V "panskom dome na Tepliciach" bolo postarané o pohodlie členov rodiny, Thurzových priateľov a rôznych hodnostárov, ktorých do Rajeckých Teplíc pozýval palatín aj na úradné rokovania. Návštevníkom kúpeľov slúžil i hostinec, ktorý je písomne doložený už v r. 1542. Palatín, ktorý trpel na chronický ischias sa liečil v kúpeľoch aj v máji 1616, v poslednom r. svojho života. Ešte pred tým však dal upraviť okolie prameňov a vďaka kúpeľom sa postupne menila tvár celých Rajeckých Teplíc. Po smrti Juraja Thurzu sa kúpele stali predmetom sporov dedičov a začali chátrať. Rajecké Teplice začali ožívať až koncom 18. stor. Kúpele dostali do užívania horu Mrchová (Tlstá), bol postavený nový kúpeľný dom s troma bazénmi (panským, obecným a žobráckym), ako aj murovaná budova, ktorá poskytovala hosťom, prevažne uhorskej šľachte všetko pohodlie, vrátane služieb ránhojiča. V kúpeľoch sa objavujú prví lekári, ktorí publikujú prvé spisy o liečivých účinkoch termálnych prameňov. Prvý rozbor rajeckoteplických minerálnych vôd bol vypracovaný v r. 1793. Rozvoj Rajeckých teplíc znamenal veľa aj pre domácich obyvateľov, ktorí v kúpeľoch nachádzali prácu ako sluhovia, pri stavbách a údržbe budov, údržbe parku a rybníka. Ďalší našli obživu v tamojšej papierni a hámri. Ani v 19. stor. však neprestávali spory medzi dedičmi lietavského panstva a kúpele sa opäť neudržiavali. Ich návštevnosť klesala. Obrat nastal až v r. 1882, keď kúpele aj s hostincom a priľahlými pozemkami kúpili JUDr. V. Šmialovský s A. Pichlom. Noví majitelia prestavali niektoré kúpeľné budovy, bazén, zriadili vaňové kúpele a začali s budovaním parku. Hostia začali pribúdať, popularita kúpeľov vzrástla, keď ich v r. 1889 navštívil arciknieža Karol Ľudovít s manželkou. Následne bol postavený nový kúpeľný dom, hotely, čiže vily Agrarius, Dépendance a Gambrinus. Návštevníci mali k dispozícií "kursalón", čitáreň, knižnicu, hudobnú izbu, kolkáreň, tenisové kurty, biliard ap. Medzi Žilinou a Rajeckými Teplicami premávali v sezóne bričky a omnibus. Na jeseň r. 1898 sa na podnet V. Šmialovského začalo s výstavbou lokálnej železnice Žilina - Rajec, ktorej prevádzka začala už v nasledujúcom roku. Nové storočie prinieslo pre Rajecké Teplice úpadok, podmienený zadĺženosťou majiteľov a 1. svetovou vojnou. Nezabránili mu ani podnikaví jednotlivci, ako boli Ladislav Hauser a Rudolf Flamm. Po r. 1918 mal kúpele v prenájme V. Stoček z Ostravy, v r. 1925 ich získala Revírna bratská pokladnica z Ostravy. Zmenila a dobudovala sa tvár kúpeľov. V 30. rokoch sa postavil nový liečebný dom Baník, kúpeľný dom (dodnes sú v prevádzke), moderné hotely Veľká Fatra a Malá Fatra. Kúpeľný park vytvoril J. Červinka v rokoch 1932 - 1939. V r. 1935 do obce zaviedli elektrinu. V októbri 1940 sa kúpele stali majetkom Robotníckej sociálnej poisťovne v Bratislave, ktorá ich spravovala počas celej 2. svetovej vojny. V r. 1944 obsadili kúpele nemecké vojenské jednotky, ktoré ich využívali ako nemocničné zariadenia. Kúpele obnovili činnosť už v lete 1945, v r. 1953 prešli do Správy kúpeľov, sanatórií a zotavovní ROH.

V r. 1959 získali Rajecké Teplice štatút kúpeľného miesta, ktorý okrem iného vymedzil územie kúpeľov a zaručil ochranu liečivých prameňov. V lete 1960 postihla Rajecké Teplice veľká povodeň. Spôsobila značné škody a kúpeľnú prevádzku museli na čas prerušiť. Podobná kalamita sa zopakovala ešte v r. 1976 a 1997.

 

Demografia

Obec sa približne od začiatku 17. stor. vyvíjala ako kúpeľná osada. V r. 1784 mala 4 domy, 5 rodín a 27 obyvateľov. V r. 1828 mala 8 domov a 89 obyvateľov. V 2. pol. 19. stor. bola načas samostatnou obcou, ktorá bola v r. 1880 pričlenená k obci Konská. Do 50. rokov 20. stor. sa Rajecké Teplice vyvíjali ako osada obce Konská.

Po skončení 2. svetovej vojny boli Rajecké Teplice stále súčasťou obce Konská. Osamostatnili sa až začiatkom roka 1951, keď tu žilo približne 460 obyvateľov. Od r. 1980 boli Rajeckými Teplicami integrované obce Poluvsie, Stránske, Konská, Kunerad a Kamenná Poruba. Spojenie kúpeľného miesta a obcí výrazne poľnohospodárskeho charakteru sa neukázalo šťastné. Obce sa osamostatnili až po r. 1989. Rajecké Teplice boli 8. februára 1989 povýšené na mesto. V r. 2000 malo mesto 2671 obyvateľov, z toho 1323 mužov a 1348 žien.

 

Hospodárstvo, kultúra

Prírodné liečebné kúpele Rajecké Teplice využívajú ako hlavný balneoterapeutický prostriedok termálne pramene 38 °C teplej hydrouhličitanovo-vápenato-horečnatej liečivej vody bez ďalšej úpravy. Celkovo bolo v hĺbke 25 až 30 metrov zachytené do sond alebo studní osem prameňov. Výdatnosť majú asi 10 litrov za sekundu. Liečia sa tu zápalové, ako aj degeneratívne choroby pohybovej sústavy v štádiu pokoja alebo odznievania akútnych príznakov. S úspechom sa tu liečia i stavy po úrazoch, alebo operáciách kĺbov a chrbtice, vrátane operácií medzistavcovej platničky a operácií s použitím kĺbových náhrad. Z nervových chorôb sa v kúpeľoch liečia stavy po detskej obrne, nervovo-svalové degeneratívne ochorenia, hemiparézy a paraparézy cievneho pôvodu, chabé obrny okrem poúrazových, Parkinsonova choroba a niektoré choroby z povolania. V rámci komplexnej kúpeľnej liečby sa poskytujú vodoliečebné procedúry (perličkové, vírivé kúpele, škótske sprchy, kúpele v dvoch piscínových bazénoch a iné), masáže, celá paleta elektroliečebných procedúr, lokálna aplikácia parafínových zábalov, individuálna i skupinová telesná výchova, manipulačná liečba, plynové injekcie a podobne. Kúpele Rajecké Teplice sú kompletne vybavené diagnostickými a liečebnými prístrojmi a kvalifikovaným odborným personálom. V súčasnosti majú kapacitu cca 500 postelí. Súčasťou kúpeľov je aj fitnescentrum. V športovom areáli, ktorý sa nachádza v bezprostrednej blízkosti termálneho kúpaliska s 25-28 °C teplou vodou, sú k dispozícií tenisové, volejbalové a nohejbalové ihriská. Chvíle oddychu pomáhajú vypĺňať aj spoločenské hry, biliard a rozsiahla knižnica. Vo voľnom čase sa môžu pacienti zúčastniť na poznávacích zájazdoch. Veľký záujem je o podujatia tradičného kultúrneho leta a júnové hodové slávnosti. Kultúrny život v obci bol vždy spojený s kultúrnymi podujatiami kúpeľov.

Prítomnosť kúpeľov a krásne prostredie priviedli do Rajeckých Teplíc viaceré podniky, ktoré tu začali budovať rekreačné zariadenia pre svojich zamestnancov. Rastúci počet obyvateľov a kúpeľných hostí vyvolával tlak na rozvoj vybavenosti Rajeckých Teplíc. V r. 1961 sa začalo vyučovať v novostavbe školy a otvorili prírodný amfiteáter. Novú železničnú stanicu postavili ešte v rokoch 1965 - 1966, začiatkom 70. rokov pribudol obchodný dom a budova pošty s telefónnou ústredňou. Neskôr sa vybudoval vodovod a telocvičňa, obec sa postupne plynofikovala. V rokoch 1980 - 1981 uskutočnili kúpele rekonštrukciu parku. V tomto období vznikol aj rehabilitačno-športový areál s výbornými podmienkami pre tenis. Medzi novšie objekty patrí budova zdravotného strediska s lekárňou a budova mestského úradu. V minulých rokoch sa uskutočnila aj rekonštrukcia termálneho kúpaliska, chodníkov a verejného osvetlenia. Postavil sa dom smútku a čistička odpadových vôd.

Po r. 1989 sa viaceré objekty kúpeľov na základe reštitučných zákonov vrátili pôvodným majiteľom a nastúpila privatizácia. Slovenské liečebné kúpele Rajecké Teplice štátny podnik, boli 1. februára 1996 transformované na akciovú spoločnosť, ktorej súčasťou sú Prírodné liečebné kúpele Rajecké Teplice a Kúpeľná liečebňa Kunerad.

Rajecké Teplice nenavštevujú len pacienti kúpeľov, ale čoraz viac i turisti. V sezóne ich láka najmä termálne kúpalisko, možností pre cykloturistiku (možnosť vypožičať bicykle), resp. pešiu turistiku je však viac. Tých, ktorí obľubujú nenáročné prechádzky v príjemnom prostredí, uspokojí pestovaný a zrekonštruovaný kúpeľný park s jazerom alebo blízke lesoparky. Okolité prírodné krásy lákajú na pešie túry do Súľovských skál, Lúčanskej Malej Fatry a Strážovských vrchov. Z kúpeľného lesoparku do prírodnej rezervácie Slnečné skaly sa dá prejsť po náučnom chodníku. Cez Skalky, ktoré sa vypínajú nad Rajeckými Teplicami vedie turistický chodník k zrúcaninám Lietavy, druhého najväčšieho hradu na Slovensku. Vápence a dolomity, vytvárajúce Skalky časom zvetrali a tak vznikli bohato členené skalné útvary, ktorým ľudská fantázia dala rôzne názvy: mačka, strážca (pri Poluvsí), organy, mních, derviš, dáma v krinolíne a pod. Presakovaním vody sa vo vápencoch vylúhovali dutiny, z ktorých sa niektoré podobajú jaskyniam, väčšinou bez kvapľovej výzdoby (Jánošíkova jaskyňa). Bohaté sú aj možnosti zimnej rekreácie a mototuristiky. Pre zdatnejších sú k dispozícií dobré lyžiarske terény.

Liečebňa Kunerad leží 7 km od Rajeckých Teplíc, v nadmorskej výške 590 metrov. Kúpele sú umiestnené v Kuneradskom zámku, bývalom poľovníckom sídle grófa Ballestrema, postavenom v r. 1916. Prostredie liečebne s okolitými lesmi vytvára jedinečné podmienky aj pre klimatickú liečbu v teréne.

V meste je kostolík Nanebovzatia Panny Márie, vysvätený v r. 1909. Nakoľko nevyhovoval svojou kapacitou, bol vybudovaný nový kostol Božského srdca Ježišovho, ktorý v r. 2001 posvätil kardinál J. Ch. Korec.


Rajecké Teplice

Geografia

Ležia v južnom výbežku Žilinskej kotliny na svahu Skalky. Nízka pahorkatinná časť chotára je na terasových naplaveninách Rajčianky a Kuneradského potoka, severná časť na stráňach a na hrebeni Skaliek, ktoré tvoria druhohorné horniny. Výškový rozdiel medzi oboma časťami je podmienený tektonickou poruchou, takzvaným rajeckoteplickým zlomom, pozdĺž ktorého kotlina poklesla. V zlome sú pramene termálnych minerálnych vôd. Podnebie Teplickej kotliny je priaznivé, ročný priemer teploty je asi 7,5 °C, pričom najteplejší mesiac júl má priemernú teplotu 16,7 °C. Veľmi priaznivé sú najmä jarné a jesenné mesiace, keď najmenej prší a teplota cez deň dosahuje 15 - 18 °C. Ovzdušie je bez prachu, ovládané západnými a severozápadnými vetrami. V chotári sú hnedé lesné pôdy, lesy len v severnej časti. Vápencové Skalky sú chránený prírodný útvar. Pomerne výdatné zrážky a mierna teplota umožnili vznik bohatej vegetácií. Najrozšírenejší vegetačný kryt tvoria bučiny, jedle a borovice, najmä na skalných hrebeňoch a prudších svahoch s tenkou vrstvou vápencových a dolomitových zvetralín. Najpôvabnejšie sú Skalky s vápencovou flórou, ako je kavyl pôvabný (Skipa pulcherima), žeružník skalný (Hornungia petracea), trčník čmelovitý (Ophrys fuciflora), cesnak žltý (Allium flavum) a iné druhy panónskej kveteny. Rastie tu i poniklec, prvosienka lysá, vemenník dvojlistý, vtáčia prilbica biela, stokráska Michaeliho. Zo zveri tu žije divá mačka, líška, srna, zmija, jašterica a iné. Z vtákov výr, drozd skalný, sokol myšiar, myšiak, jastrab, pinka, krutihlav, ďateľ veľký, brhlík, sýkorky a ďalšie. Z motýľov okáče, jasoň parmský ap.

 

História

Nachádzajú sa tu výšinné a rovinné sídliská púchovskej kultúry z počiatku doby rímskej a sídlisko z doby poveľkomoravskej. Rajecké Teplice vznikli ako osada v chotári obce Konská. Prvé spoľahlivé svedectvo o ich existencii poskytuje listina uhorského kráľa Ľudovíta Veľkého z r. 1375. V listine sa v súvislosti so zámenou kráľovských majetkov v Novohradskej stolici za rajecké majetky šľachtica Dominika a jeho príbuzných spomína aj škultécia dediny Teplica: "scultetia seu rectoratus vulgo wayth villae Tapolcha". Možno teda predpokladať, že Rajecké Teplice vznikli niekedy v polovici 14. stor. Boli kolonizované pravdepodobne z neďalekej Žiliny, rovnako, ako ďalšie osady Rajeckej doliny. Celé územie v povodí Rajčianky patrilo hradu Lietava. V listinách sa uvádzajú Teplice ako "possessio Thoplycza" aj v r. 1496. Obec bola súčasťou Lietavského panstva, žilo v nej niekoľko rodín, zaoberajúcich sa roľníctvom, drevorubačstvom a chovom dobytka. Neskôr bol v obci mlyn a píla. Teplice teda mali v rukách vždy majitelia hradu Lietava. Pre obec boli najvýznamnejšími Thurzovci, ktorí už dobre poznali liečivé účinky prameňov v Rajeckých Tepliciach. Chodieval sem rád i palatín Juraj Thurzo. Asi v r. 1610 tu dal postaviť, resp, upraviť murovaný dom so 7 izbami. V "panskom dome na Tepliciach" bolo postarané o pohodlie členov rodiny, Thurzových priateľov a rôznych hodnostárov, ktorých do Rajeckých Teplíc pozýval palatín aj na úradné rokovania. Návštevníkom kúpeľov slúžil i hostinec, ktorý je písomne doložený už v r. 1542. Palatín, ktorý trpel na chronický ischias sa liečil v kúpeľoch aj v máji 1616, v poslednom r. svojho života. Ešte pred tým však dal upraviť okolie prameňov a vďaka kúpeľom sa postupne menila tvár celých Rajeckých Teplíc. Po smrti Juraja Thurzu sa kúpele stali predmetom sporov dedičov a začali chátrať. Rajecké Teplice začali ožívať až koncom 18. stor. Kúpele dostali do užívania horu Mrchová (Tlstá), bol postavený nový kúpeľný dom s troma bazénmi (panským, obecným a žobráckym), ako aj murovaná budova, ktorá poskytovala hosťom, prevažne uhorskej šľachte všetko pohodlie, vrátane služieb ránhojiča. V kúpeľoch sa objavujú prví lekári, ktorí publikujú prvé spisy o liečivých účinkoch termálnych prameňov. Prvý rozbor rajeckoteplických minerálnych vôd bol vypracovaný v r. 1793. Rozvoj Rajeckých teplíc znamenal veľa aj pre domácich obyvateľov, ktorí v kúpeľoch nachádzali prácu ako sluhovia, pri stavbách a údržbe budov, údržbe parku a rybníka. Ďalší našli obživu v tamojšej papierni a hámri. Ani v 19. stor. však neprestávali spory medzi dedičmi lietavského panstva a kúpele sa opäť neudržiavali. Ich návštevnosť klesala. Obrat nastal až v r. 1882, keď kúpele aj s hostincom a priľahlými pozemkami kúpili JUDr. V. Šmialovský s A. Pichlom. Noví majitelia prestavali niektoré kúpeľné budovy, bazén, zriadili vaňové kúpele a začali s budovaním parku. Hostia začali pribúdať, popularita kúpeľov vzrástla, keď ich v r. 1889 navštívil arciknieža Karol Ľudovít s manželkou. Následne bol postavený nový kúpeľný dom, hotely, čiže vily Agrarius, Dépendance a Gambrinus. Návštevníci mali k dispozícií "kursalón", čitáreň, knižnicu, hudobnú izbu, kolkáreň, tenisové kurty, biliard ap. Medzi Žilinou a Rajeckými Teplicami premávali v sezóne bričky a omnibus. Na jeseň r. 1898 sa na podnet V. Šmialovského začalo s výstavbou lokálnej železnice Žilina - Rajec, ktorej prevádzka začala už v nasledujúcom roku. Nové storočie prinieslo pre Rajecké Teplice úpadok, podmienený zadĺženosťou majiteľov a 1. svetovou vojnou. Nezabránili mu ani podnikaví jednotlivci, ako boli Ladislav Hauser a Rudolf Flamm. Po r. 1918 mal kúpele v prenájme V. Stoček z Ostravy, v r. 1925 ich získala Revírna bratská pokladnica z Ostravy. Zmenila a dobudovala sa tvár kúpeľov. V 30. rokoch sa postavil nový liečebný dom Baník, kúpeľný dom (dodnes sú v prevádzke), moderné hotely Veľká Fatra a Malá Fatra. Kúpeľný park vytvoril J. Červinka v rokoch 1932 - 1939. V r. 1935 do obce zaviedli elektrinu. V októbri 1940 sa kúpele stali majetkom Robotníckej sociálnej poisťovne v Bratislave, ktorá ich spravovala počas celej 2. svetovej vojny. V r. 1944 obsadili kúpele nemecké vojenské jednotky, ktoré ich využívali ako nemocničné zariadenia. Kúpele obnovili činnosť už v lete 1945, v r. 1953 prešli do Správy kúpeľov, sanatórií a zotavovní ROH.

V r. 1959 získali Rajecké Teplice štatút kúpeľného miesta, ktorý okrem iného vymedzil územie kúpeľov a zaručil ochranu liečivých prameňov. V lete 1960 postihla Rajecké Teplice veľká povodeň. Spôsobila značné škody a kúpeľnú prevádzku museli na čas prerušiť. Podobná kalamita sa zopakovala ešte v r. 1976 a 1997.

 

Demografia

Obec sa približne od začiatku 17. stor. vyvíjala ako kúpeľná osada. V r. 1784 mala 4 domy, 5 rodín a 27 obyvateľov. V r. 1828 mala 8 domov a 89 obyvateľov. V 2. pol. 19. stor. bola načas samostatnou obcou, ktorá bola v r. 1880 pričlenená k obci Konská. Do 50. rokov 20. stor. sa Rajecké Teplice vyvíjali ako osada obce Konská.

Po skončení 2. svetovej vojny boli Rajecké Teplice stále súčasťou obce Konská. Osamostatnili sa až začiatkom roka 1951, keď tu žilo približne 460 obyvateľov. Od r. 1980 boli Rajeckými Teplicami integrované obce Poluvsie, Stránske, Konská, Kunerad a Kamenná Poruba. Spojenie kúpeľného miesta a obcí výrazne poľnohospodárskeho charakteru sa neukázalo šťastné. Obce sa osamostatnili až po r. 1989. Rajecké Teplice boli 8. februára 1989 povýšené na mesto. V r. 2000 malo mesto 2671 obyvateľov, z toho 1323 mužov a 1348 žien.

 

Hospodárstvo, kultúra

Prírodné liečebné kúpele Rajecké Teplice využívajú ako hlavný balneoterapeutický prostriedok termálne pramene 38 °C teplej hydrouhličitanovo-vápenato-horečnatej liečivej vody bez ďalšej úpravy. Celkovo bolo v hĺbke 25 až 30 metrov zachytené do sond alebo studní osem prameňov. Výdatnosť majú asi 10 litrov za sekundu. Liečia sa tu zápalové, ako aj degeneratívne choroby pohybovej sústavy v štádiu pokoja alebo odznievania akútnych príznakov. S úspechom sa tu liečia i stavy po úrazoch, alebo operáciách kĺbov a chrbtice, vrátane operácií medzistavcovej platničky a operácií s použitím kĺbových náhrad. Z nervových chorôb sa v kúpeľoch liečia stavy po detskej obrne, nervovo-svalové degeneratívne ochorenia, hemiparézy a paraparézy cievneho pôvodu, chabé obrny okrem poúrazových, Parkinsonova choroba a niektoré choroby z povolania. V rámci komplexnej kúpeľnej liečby sa poskytujú vodoliečebné procedúry (perličkové, vírivé kúpele, škótske sprchy, kúpele v dvoch piscínových bazénoch a iné), masáže, celá paleta elektroliečebných procedúr, lokálna aplikácia parafínových zábalov, individuálna i skupinová telesná výchova, manipulačná liečba, plynové injekcie a podobne. Kúpele Rajecké Teplice sú kompletne vybavené diagnostickými a liečebnými prístrojmi a kvalifikovaným odborným personálom. V súčasnosti majú kapacitu cca 500 postelí. Súčasťou kúpeľov je aj fitnescentrum. V športovom areáli, ktorý sa nachádza v bezprostrednej blízkosti termálneho kúpaliska s 25-28 °C teplou vodou, sú k dispozícií tenisové, volejbalové a nohejbalové ihriská. Chvíle oddychu pomáhajú vypĺňať aj spoločenské hry, biliard a rozsiahla knižnica. Vo voľnom čase sa môžu pacienti zúčastniť na poznávacích zájazdoch. Veľký záujem je o podujatia tradičného kultúrneho leta a júnové hodové slávnosti. Kultúrny život v obci bol vždy spojený s kultúrnymi podujatiami kúpeľov.

Prítomnosť kúpeľov a krásne prostredie priviedli do Rajeckých Teplíc viaceré podniky, ktoré tu začali budovať rekreačné zariadenia pre svojich zamestnancov. Rastúci počet obyvateľov a kúpeľných hostí vyvolával tlak na rozvoj vybavenosti Rajeckých Teplíc. V r. 1961 sa začalo vyučovať v novostavbe školy a otvorili prírodný amfiteáter. Novú železničnú stanicu postavili ešte v rokoch 1965 - 1966, začiatkom 70. rokov pribudol obchodný dom a budova pošty s telefónnou ústredňou. Neskôr sa vybudoval vodovod a telocvičňa, obec sa postupne plynofikovala. V rokoch 1980 - 1981 uskutočnili kúpele rekonštrukciu parku. V tomto období vznikol aj rehabilitačno-športový areál s výbornými podmienkami pre tenis. Medzi novšie objekty patrí budova zdravotného strediska s lekárňou a budova mestského úradu. V minulých rokoch sa uskutočnila aj rekonštrukcia termálneho kúpaliska, chodníkov a verejného osvetlenia. Postavil sa dom smútku a čistička odpadových vôd.

Po r. 1989 sa viaceré objekty kúpeľov na základe reštitučných zákonov vrátili pôvodným majiteľom a nastúpila privatizácia. Slovenské liečebné kúpele Rajecké Teplice štátny podnik, boli 1. februára 1996 transformované na akciovú spoločnosť, ktorej súčasťou sú Prírodné liečebné kúpele Rajecké Teplice a Kúpeľná liečebňa Kunerad.

Rajecké Teplice nenavštevujú len pacienti kúpeľov, ale čoraz viac i turisti. V sezóne ich láka najmä termálne kúpalisko, možností pre cykloturistiku (možnosť vypožičať bicykle), resp. pešiu turistiku je však viac. Tých, ktorí obľubujú nenáročné prechádzky v príjemnom prostredí, uspokojí pestovaný a zrekonštruovaný kúpeľný park s jazerom alebo blízke lesoparky. Okolité prírodné krásy lákajú na pešie túry do Súľovských skál, Lúčanskej Malej Fatry a Strážovských vrchov. Z kúpeľného lesoparku do prírodnej rezervácie Slnečné skaly sa dá prejsť po náučnom chodníku. Cez Skalky, ktoré sa vypínajú nad Rajeckými Teplicami vedie turistický chodník k zrúcaninám Lietavy, druhého najväčšieho hradu na Slovensku. Vápence a dolomity, vytvárajúce Skalky časom zvetrali a tak vznikli bohato členené skalné útvary, ktorým ľudská fantázia dala rôzne názvy: mačka, strážca (pri Poluvsí), organy, mních, derviš, dáma v krinolíne a pod. Presakovaním vody sa vo vápencoch vylúhovali dutiny, z ktorých sa niektoré podobajú jaskyniam, väčšinou bez kvapľovej výzdoby (Jánošíkova jaskyňa). Bohaté sú aj možnosti zimnej rekreácie a mototuristiky. Pre zdatnejších sú k dispozícií dobré lyžiarske terény.

Liečebňa Kunerad leží 7 km od Rajeckých Teplíc, v nadmorskej výške 590 metrov. Kúpele sú umiestnené v Kuneradskom zámku, bývalom poľovníckom sídle grófa Ballestrema, postavenom v r. 1916. Prostredie liečebne s okolitými lesmi vytvára jedinečné podmienky aj pre klimatickú liečbu v teréne.

V meste je kostolík Nanebovzatia Panny Márie, vysvätený v r. 1909. Nakoľko nevyhovoval svojou kapacitou, bol vybudovaný nový kostol Božského srdca Ježišovho, ktorý v r. 2001 posvätil kardinál J. Ch. Korec.


Okres Žilina

Má rozlohu 815,08 km², žije tu 155 989 obyvateľov a priemerná hustota zaľudnenia je 191 obyvateľov na km² (údaje k 31. 12. 2014).

Územie susedí na severe s okresmi Čadca a Kysucké Nové Mesto, na západe s okresmi Bytča, Považská Bystrica a Ilava, na juhu s okresom Prievidza a na východe s okresmi Martin a Dolný Kubín.

Prvé písomné zmienky o väčšine obcí okolia Žiliny sú z 13. a 14. storočia. Neskôr, počas valašskej a kopaničiarskej kolonizácie, boli osídlené obce pri horných tokoch riek a na úpätiach hôr Malej Fatry (Lysica, Dolná, Horná Tižina, Terchová).

Obyvateľstvo starého kultúrneho územia úrodnejšej časti okolia Žiliny sa zaoberalo poľnohospodárstvom, roľníci horských kopaničiarskych obcí boli viac zameraní na chov hospodárskych zvierat. Obrábali aj vysoko položené polia a využívali horské pasienky v odľahlom chotári, kde mali vybudované letné príbytky a maštale, tzv. bačoviská (cholvarky). Väčší význam mal salašnícky chov oviec s produkciou mliečnych výrobkov, mäsa, vlny a kožušiny. Úžitok prinášalo napokon aj výdatné hnojenie košarovanej pôdy. Salašnícky forma chovu oviec sa do súčasnosti zachovala vo viacerých obciach severozápadného Slovenska, v Terchovej a Belej pri Varíne nadobudla charakter družstevnej veľkovýroby.


Žilinský kraj

Demografia

K 21. máju 2011, bolo na území Žilinského kraja 144 948 domov, t.j. 13,5 % z celkového počtu domov v Slovenskej republike (z toho 120 788 obývaných, t.j. 83,3 %). Žilinský kraj bol v počte domov na druhom mieste za Nitrianskym krajom (podiel 16,2 %). Spomedzi okresov kraja najvyšší počet domov sa nachádzal v Žiline 20,3 % a najmenej v Turčianskych Tepliciach 3,3 %. Obývaných domov bolo v okrese Žilina 21,1 % z úhrnu za kraj a v Turčianskych Tepliciach 3,2 %.

Geologická charakteristika

Celé toto hornaté územie spadá z geomorfologického hľadiska do Západných Karpát. Horské masívy v tejto lokalite sa sformovali pomerne nedávno, v paleogéne. Zásluhou pohybov príkrovov sa vyzdvihovali pôvodné morské sedimenty, z ktorých postupne vznikli impozantné údolia. Rieka Váh územie nápadne rozdeľuje na dve časti:

  • severná zahŕňa pohoria: Tatry, Skorušinské vrchy, Oravské Beskydy, Oravská Magura, Oravská vrchovina, Chočské vrchy, Krivánska Fatra, Kysucké Beskydy, Kysucká vrchovina a Javorníky
  • južná zahŕňa pohoria: Nízke Tatry, Veľká Fatra, Lúčanská Fatra a Strážovské vrchy

Dejiny

Po páde Veľkomoravskej ríše v roku 907, ku ktorej územie patrilo, bolo od 12. storočia prakticky až do roku 1918 súčasťou uhorského kráľovstva. V 13. storočí na obranu proti mongolským nájazdom bola vybudovaná sieť hradov (Hričov, Považský, Košecký, Lietavský, Strečniansky). 16. storočie znamenalo pre miestnych obyvateľov chudobu a strach, hlavne pred tureckou okupáciou a živelnými pohromami. Ku koncu 19. storočia tu bola zavedená železnica a v údolí Váhu začal prekvitať priemysel.


Stručná história Slovenska

Prvý štátny útvar Slovanov na území dnešného Slovenska bola Samova ríša (7. storočie), neskôr Nitrianske kniežatstvo (začiatok 9. storočia), ktorého spojením s Moravským kniežatstvom vznikla v roku 833 Veľká Morava. Od polovice 10. do konca 11. storočia sa územie Slovenska postupne začlenilo do Uhorska, ktoré sa v roku 1526 stalo súčasťou Rakúskej monarchie (Habsburskej monarchie), od roku 1867 nazývanej Rakúsko-Uhorsko. Po rozpade Rakúsko-Uhorska v roku 1918 bolo Slovensko súčasťou Česko-Slovenska až do roku 1993 (okrem obdobia samostatnosti počas vojnovej Slovenskej republiky). 1. januára 1993 vznikla rozdelením tohto štátneho útvaru samostatná Slovenská republika.

Slovenská republika je parlamentnou demokraciou, štátnym jazykom je slovenčina. Od 1. mája 2004 je Slovensko členom Európskej únie, od 21. decembra 2007 je členom Schengenského priestoru. Od 1. januára 2009 je 16. členom Európskej menovej únie – eurozóny a oficiálnou menou sa stalo euro, ktoré vystriedalo slovenskú korunu.