EXKLUZÍVNE Vám ponúkame na predaj moderné 4-izbové rodinné domy s úžitkovou plochou 88,75 m2. Sú vybavené inteligentnou technológiou a odovzdávané v štádiu dokončenia „holodomy“. Architektonicky vyvážené nehnuteľnosti sú situované na rovinatom pozemku o výmere cca 320 m2 v obci Veľký Biel a sú samostatnou prevádzkovou jednotkou dvojdomu. Premyslene zvolený tvar a sklon strechy umožňuje zobytnenie podkrovia, čím sa úžitková plocha zvýši až o 60 m2.
Predávané domy sú súčasťou pôsobivého projektu výstavby 20 rodinných domov tvorených 10 dvojdomami. Obrovským benefitom je pokojná a bezpečná lokalita v spoločenstve oku lahodiacich nových rodinných domov i pestrá občianska vybavenosť, je tiež súčasťou obľúbeného regiónu Senec a na dosah hlavného mesta Bratislava.
Pre viac informácií kliknite na webovú stránku www.zamestom.sk
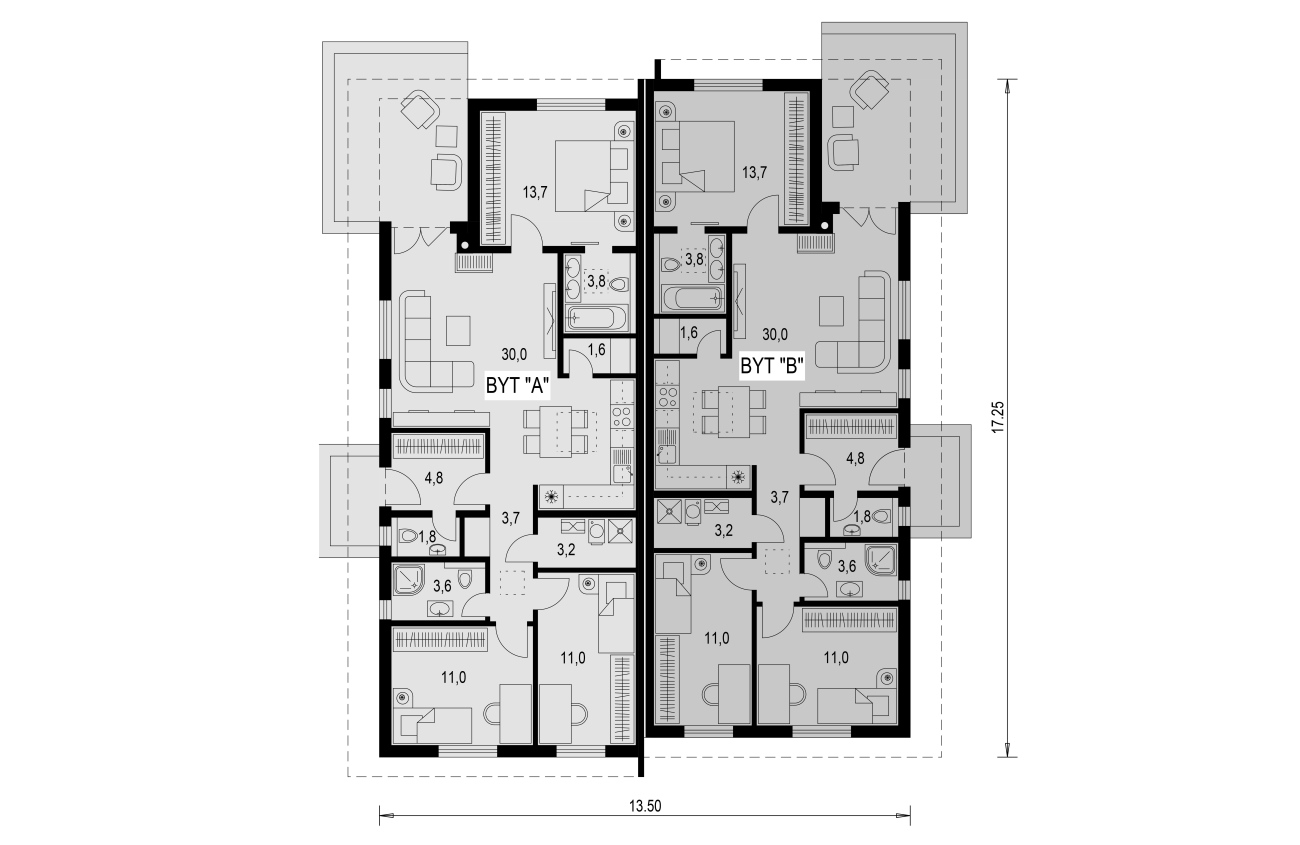
DISPOZÍCIA
Dom je s ohľadom na čo najlepšiu funkčnosť a komfort dispozične premyslene rozdelený do niekoľkých zón. Hlavný vstup je zo severovýchodu, terasa je orientovaná na severozápad až sever.
Tvoria ho nasledovné miestnosti:
TECHNICKÉ A STAVEBNÉ PARAMETRE
Nehnuteľnosť je súčasťou samostatne stojaceho rodinného dvojdomu s dvomi nezávislými bytovými jednotkami, ktoré majú samostatné vstupy i terasy orientované zo vzájomne opačných strán objektu. Bude odovzdávaná v stave dokončenia „holodom“, čo okrem iného zahŕňa: osadené plastové okná s izolačným trojsklom a dvere farby antracit, vonkajšie žalúzie ovládané aj z mobilnej aplikácie, vstupné dvere, namontované teplovodné podlahové vykurovanie s možnosťou regulovania teploty v každej miestnosti, rekuperácia a tepelné čerpadlo, kompletná úprava pozemku, nainštalovaný zavlažovací systém, oplotená väčšina pozemku, funkčné spevnené plochy.
Tvar strechy je tvorený dvomi pultovými strechami v rôznych výškových úrovniach, čím je dosiahnutý štýlový a elegantný vzhľad domu. Konštrukcie striech sú riešené krovmi z masívnych krokiev, čo umožňuje vytvorenie dodatočného obytného priestoru. Strešný plášť tvoria škridle overenej značky Terran.
Dom je bez podpivničenia, základovou konštrukciou sú základové pásy z prostého betónu triedy C20/25.
Dom je bez podpivničenia, základovou konštrukciou sú základové pásy z prostého betónu triedy C20/25.
Všetky zvislé nosné aj nenosné konštrukcie sú zhotovené z tehál, obvodové murivo tvoria tehly hrúbky 300 mm s výbornými tepelnoizolačnými parametrami.
Do diletácie medzi jednotlivými jednotkami dvojdomu je vložená zvuková izolácia Akuplat 5.
Stropná konštrukcia prízemia je betónová, s požadovanými zvukovo – izolačnými vlastnosťami.
Vonkajšia omietka bude jemnozrnná, silikátová ako súčasť kompaktného zatepľovacieho systému v kombinácii s kamenným obkladom. Na vonkajšom sokli bude použitá soklová omietka marmolit.
Kombinácia uvedených materiálov a forma realizácie stavby zaručujú ekologické bývanie a nízke mesačné náklady na prevádzku domu.
Inžinierske siete: obecný vodovod, elektrická energia, obecná kanalizácia, optická sieť, studňa 8m.
REALIZÁCIA STAVBY
Projekt výstavby rodinných domov realizuje overený dodávateľ s dlhoročnou praxou na stavebnou trhu. Pri projektovaní a uskutočňovaní stavebných prác dbá na architektonicky zaujímavé, no zároveň praktické prvky, volí kvalitné a overené materiály, svoje kroky konzultuje s odborníkmi súvisiacich odvetví. I preto sa ním realizované výstavby radia medzi obľúbené a vyhľadávané projekty.
V súčasnosti je nehnuteľnosť v štádiu dokončenej hrubej stavby/ holodomu. Plánované dokončenie výstavby je do jesene 2024, prípadne skôr podľa individuálnej dohody.
LOKALITA
Ak sa rozhodujete medzi bývaním v blízkosti veľkomesta a domovom na dosah prírodných krás, v prípade obce Veľký Biel nemusíte robiť žiadne kompromisy! V jej harmonickom prostredí sú k dispozícii nielen školy, materské školy a detské ihriská, prevádzky s rôznymi službami, kultúrne stánky a iné, no na skok je to aj k prírodnému Bielskemu jazeru i obľúbeným atrakciám seneckého regiónu. Do pár minút je vzdialený aquapark, cyklodráha, jazdecký park, golfový areál i vyhľadávané Slnečné jazerá. Hlavné mesto Bratislava sa nachádza približne 18 km od obce a je pohodlne dostupné ako rýchlostnými cestami, tak i pravidelnou autobusovou a vlakovou dopravou. Cestný privádzač k diaľnici D1 pre smery Bratislava – Žilina – Košice je vzdialený cca 7 minút.
Predávaný rodinný dom je vhodný pre záujemcu, ktorý si chce výhody nového moderného bývania užívať osobne alebo nehnuteľnosť prenajímať.
Dostupnosť: k dispozícii ihneď.
Cena RD15: 299.000,- €.
Nájdete na stránke realityMGM.sk pod ID ZA013626 a na www.zamestom.sk
Call centrum tel: 0910 86 11 86.